designer : New House Plan - The Willowbrook
design name : New House Plan - The Willowbrook
New House Plan - The Willowbrook
Over at Simply Elegant Home Designs we will be coming out with a new design in the next couple of weeks. Below is a sneak preview of our "Willowbrook".
![]() |
| Birdseye View |
![]() |
| Main Level Floor Plan |
![]() |
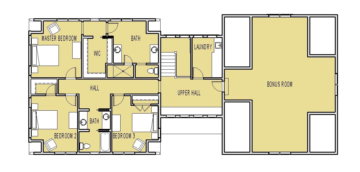
| Upper Level Floor Plan |
![]() |
| Front Elevation - house left, entry and stairs middle, garage right. |
Thus articles New House Plan - The Willowbrook
declares Modern Home Design New House Plan - The Willowbrook, hopefully can provide benefits to all of you. Okay, so posting this time Modern Home Design.




0 Response to "New House Plan - The Willowbrook"
Posting Komentar